LEWES

BEACH RESIDENCE

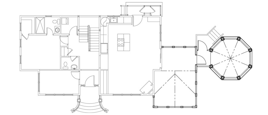
This 2,310 s.f. dwelling is located within the historic town of Lewes Delaware and is directly adjacent to a public park. The design integrates a street facade and building proportions respectful of the existing community while taking advantage of park views along the side of the property. Recent additions to the design included converting a screened porch into an indoor living space and adding a new screened gazebo.

Fearn-Clendaniel Architects, Inc.