MIDDLETOWN

EMS STATION

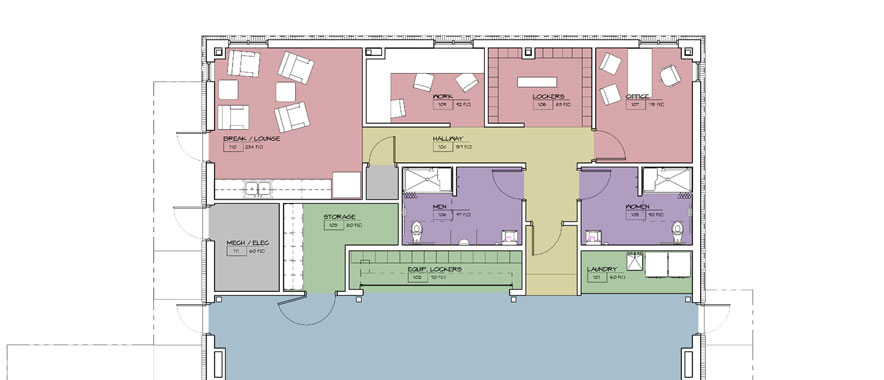
Aetna Hose, Hook, and Ladder Company has served the greater Newark area for more than 120 years, and still operates from their historic original buildings, including one built in 1890. The Company commissioned Fearn-Clendaniel Architects to study expansion options at their Station 8 (1963) and Station 9 (1922) locations. For Station 8, FCA recommended replacing the administration and crew areas with new construction, while maintaining the existing apparatus bay and banquet hall with minor updates. Station 9 occupies a tiny but key location in the center of town, and serves as company HQ. FCA carefully designed a large addition to fit on the existing site, with a small adjoining parcel. This addition will dramatically improve response efficiency and member amenities, while respecting the historic character and scale of the neighborhood. It also provides dormitories for volunteers, career members, and a UD cooperative program.

Fearn-Clendaniel Architects, Inc.

Aetna Hose, Hook, and Ladder Company has served the greater Newark area for more than 120 years, and still operates from their historic original buildings, including one built in 1890. The Company commissioned Fearn-Clendaniel Architects to study expansion options at their Station 8 (1963) and Station 9 (1922) locations. For Station 8, FCA recommended replacing the administration and crew areas with new construction, while maintaining the existing apparatus bay and banquet hall with minor updates. Station 9 occupies a tiny but key location in the center of town, and serves as company HQ. FCA carefully designed a large addition to fit on the existing site, with a small adjoining parcel. This addition will dramatically improve response efficiency and member amenities, while respecting the historic character and scale of the neighborhood. It also provides dormitories for volunteers, career members, and a UD cooperative program.
Aetna Hose, Hook, and Ladder Company has served the greater Newark area for more than 120 years, and still operates from their historic original buildings, including one built in 1890. The Company commissioned Fearn-Clendaniel Architects to study expansion options at their Station 8 (1963) and Station 9 (1922) locations. For Station 8, FCA recommended replacing the administration and crew areas with new construction, while maintaining the existing apparatus bay and banquet hall with minor updates. Station 9 occupies a tiny but key location in the center of town, and serves as company HQ. FCA carefully designed a large addition to fit on the existing site, with a small adjoining parcel. This addition will dramatically improve response efficiency and member amenities, while respecting the historic character and scale of the neighborhood. It also provides dormitories for volunteers, career members, and a UD cooperative program.
Aetna Hose, Hook, and Ladder Company has served the greater Newark area for more than 120 years, and still operates from their historic original buildings, including one built in 1890. The Company commissioned Fearn-Clendaniel Architects to study expansion options at their Station 8 (1963) and Station 9 (1922) locations. For Station 8, FCA recommended replacing the administration and crew areas with new construction, while maintaining the existing apparatus bay and banquet hall with minor updates. Station 9 occupies a tiny but key location in the center of town, and serves as company HQ. FCA carefully designed a large addition to fit on the existing site, with a small adjoining parcel. This addition will dramatically improve response efficiency and member amenities, while respecting the historic character and scale of the neighborhood. It also provides dormitories for volunteers, career members, and a UD cooperative program.
Aetna Hose, Hook, and Ladder Company has served the greater Newark area for more than 120 years, and still operates from their historic original buildings, including one built in 1890. The Company commissioned Fearn-Clendaniel Architects to study expansion options at their Station 8 (1963) and Station 9 (1922) locations. For Station 8, FCA recommended replacing the administration and crew areas with new construction, while maintaining the existing apparatus bay and banquet hall with minor updates. Station 9 occupies a tiny but key location in the center of town, and serves as company HQ. FCA carefully designed a large addition to fit on the existing site, with a small adjoining parcel. This addition will dramatically improve response efficiency and member amenities, while respecting the historic character and scale of the neighborhood. It also provides dormitories for volunteers, career members, and a UD cooperative program.
Aetna Hose, Hook, and Ladder Company has served the greater Newark area for more than 120 years, and still operates from their historic original buildings, including one built in 1890. The Company commissioned Fearn-Clendaniel Architects to study expansion options at their Station 8 (1963) and Station 9 (1922) locations. For Station 8, FCA recommended replacing the administration and crew areas with new construction, while maintaining the existing apparatus bay and banquet hall with minor updates. Station 9 occupies a tiny but key location in the center of town, and serves as company HQ. FCA carefully designed a large addition to fit on the existing site, with a small adjoining parcel. This addition will dramatically improve response efficiency and member amenities, while respecting the historic character and scale of the neighborhood. It also provides dormitories for volunteers, career members, and a UD cooperative program.